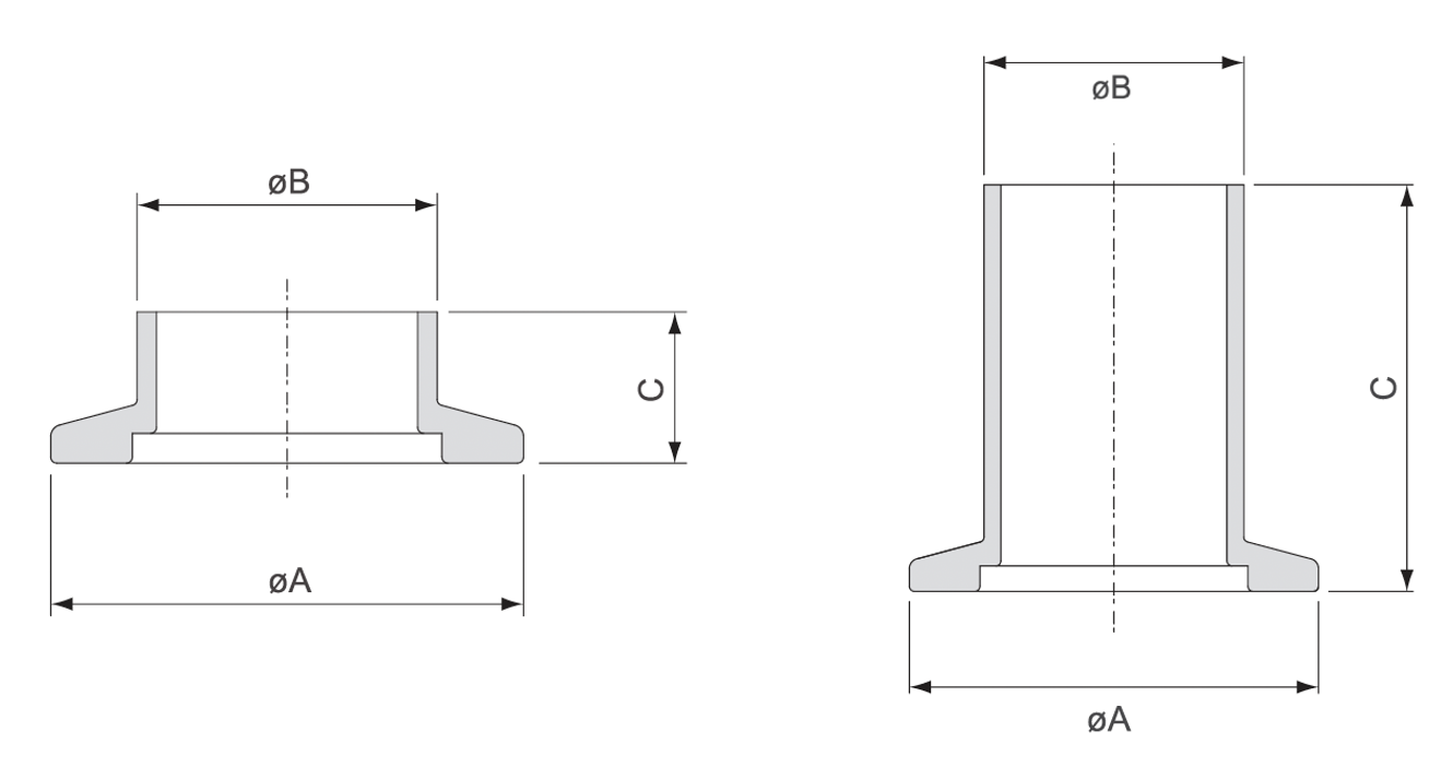
The NW/KF system refers to the bore dimensions.
NW/KF Size | External Diameter (A) | Internal Diameter, Metric (B) | Internal Diameter, Imperial (B) |
NW/KF10 | 30mm | 14mm | 12.7mm (½") |
NW/KF16 | 30mm | 20mm | 19.05mm (¾") |
NW/KF25 | 40mm | 28mm | 25.4mm (1") |
NW/KF40 | 55mm | 45mm | 38.1mm (1½") |
NW/KF50 | 75mm | 57mm | 50.8mm (2") |
C = length of flange can vary

Vacuum Connection Parts and Fittings
Vacuum clamps, O‐rings, centring rings, blanking plates, hose adapters are widely used in vacuum systems and low‐voltage pipe systems, such as electronic, food machinery, the petrochemical industry, and medicine machinery. Most vacuum fittings come with plastic protective caps which help protect the NW/KF flanges from scratches and dust.

A typical KF or NW assembly consists of two identical flanges, a centre-ring and a clamp with a fastener that allows for frequent connection and disconnection without tools. A vacuum seal is created by uniform application of pressure by the clamp on 15° surface of the flange. When the clamp is tightened the flange surfaces compress the o-ring (held in place by the centre-ring) to generate a seal.

Hinged clamp assemblies like the one above are most commonly used for making KF-flange vacuum seal connections. Assembly is simplified by the 360° rotatable flanges ad self-centring feature of the centring-ring.


Applications for vacuum systems are as varied as the imagination and include use for:
- Roughing and foreline plumbing for vacuum systems
- Small systems
- Systems demanding frequents changes or cleaning
- Experimental systems in research laboratories
- Teaching laboratories
ISO fittings (ISO‐K / ISO LF)
ISO fittings are joined by a centring ring and an elastomer o‐ring.

"The ISO large flanges come in two varieties. The ISO‐K (or ISO LF) flanges are joined with double claw clamps which clamp to a circular groove on the tubing side of the flange. The ISO‐F (or ISO LFB) flanges have holes for attaching the two flanges with bolts. Two tubes with ISO‐K and ISO‐F flanges can be joined together by clamping the ISO‐K side with single claw clamps which are then bolted to the holes on the ISO‐F side." ‐ Wikipedia
ISO large flanges are available in sizes from 63 to 500mm nominal tube diameter.
ISO standard size | Tube Diameter |
DN63LF | 63.5mm |
DN100LF | 102mm |
DN160LF | 160mm |
DN200LF | 200mm |
DN250LF | 254mm |
DN320LF | 316mm |
DN400LF | 400mm |
DN500LF | 500mm |
Conflat fittings (CF / ISO‐F)
Conflat (CF) fittings use a copper gasket and knife‐edge flange to achieve an ultrahigh vacuum seal.
"Each face of the two mating CF flanges has a knife edge which cuts into the softer metal gasket, providing an extremely leak‐tight, metal‐to‐metal seal. Deformation of the metal gasket fills small defects in the flange..." ‐ Wikipedia
Was this article helpful?
That’s Great!
Thank you for your feedback
Sorry! We couldn't be helpful
Thank you for your feedback
Feedback sent
We appreciate your effort and will try to fix the article